Compartir
RUCCI
RUCCI
Memoria de proyecto
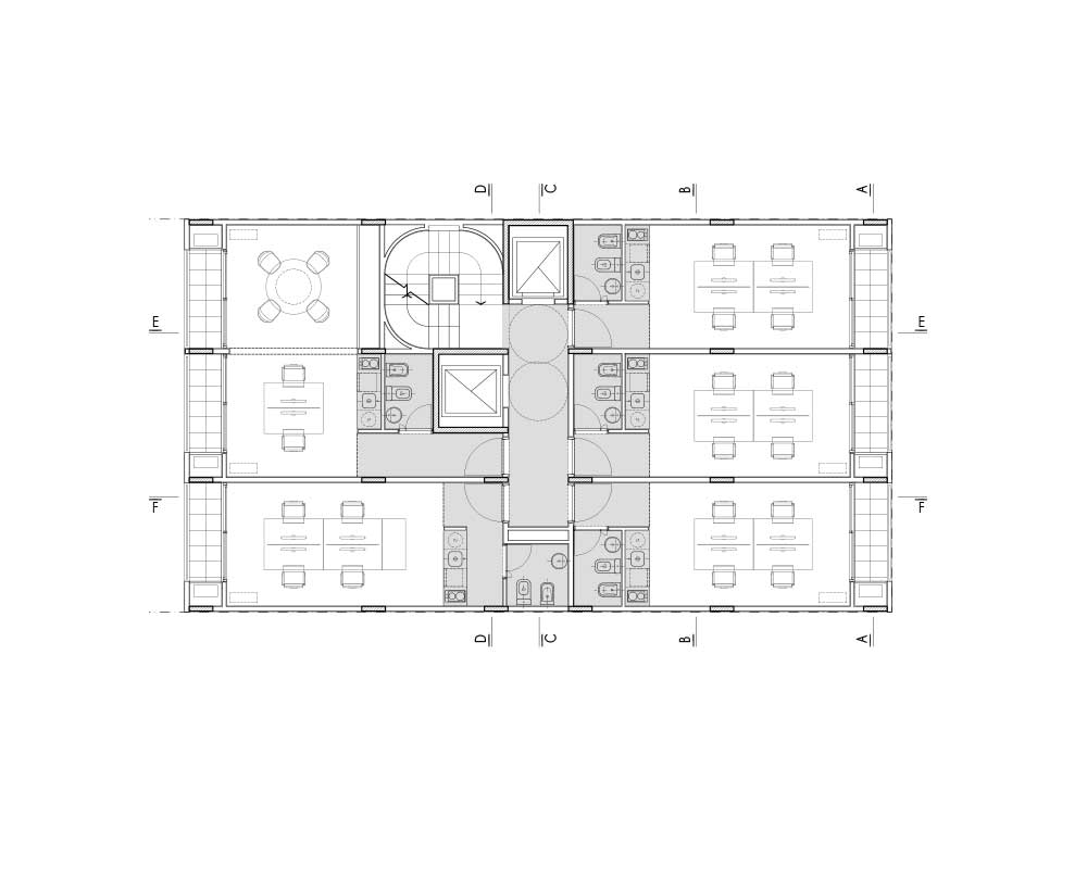
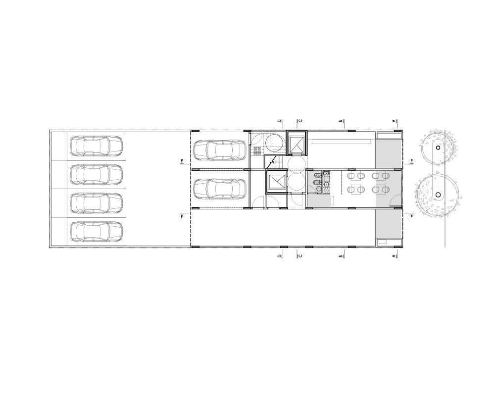
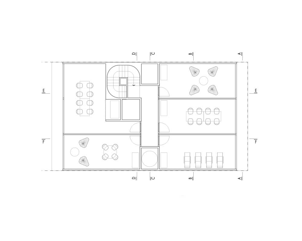
Se proyecta un edificio de oficinas sobre línea municipal que mediante una grilla y expansiones propone un juego de fachada tipo “damero”. Será un edificio de lenguaje contemporáneo y líneas puras, con un fuerte carácter arquitectónico, pero de baja escala. Al estar a pocos metros de la principal avenida comercial de la zona el emprendimiento propone ser un complemento a los locales existentes y a revalorizar las calles perpendiculares a dicha avenida. Está destinado a un público joven, emprendedor y con una fuerte intención por quedarse en el barrio.
Ficha
Autor: Arq. Juan Cruz Catania
Equipo de proyecto: Juan Stringa, Sofia Stecklein
Ubicación: Rucci, 2025, San Fernando, Buenos Aires.
Superficie: 1080 m2
Año: 2025















