Compartir
LARANJEIRAS
LARANJEIRAS
Memoria de proyecto
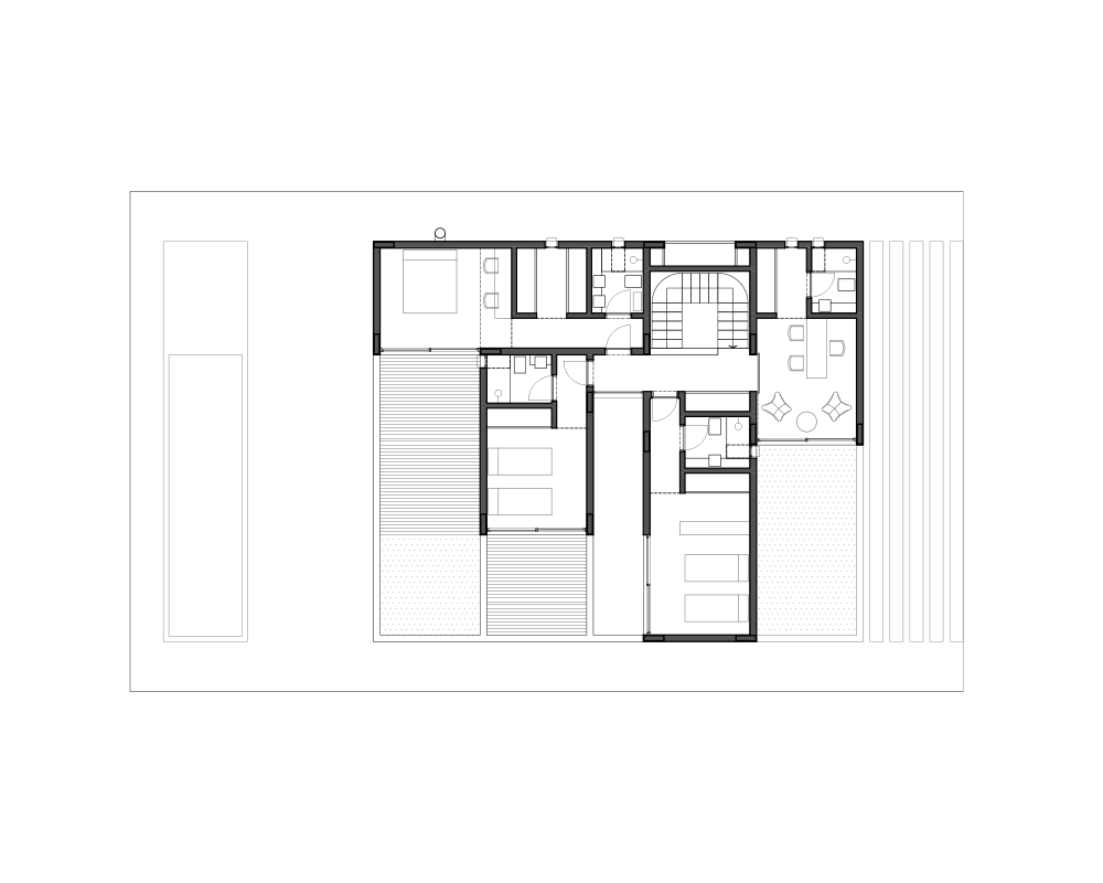
Una casa de lenguaje limpio y austero. Una arquitectura de muro blanco, silenciosa, que se cierra hacia la calle y se abre hacia el contrafrente.
En planta baja un patio y una apertura hacia el retiro lateral permiten un estar/comedor con iluminación en 3 de sus 4 caras. En planta alta los 4 dormitorios en suite se organizan para quedar orientados 3 al Norte y 1 al Este.
Ficha
Autor: Arq. Juan Cruz Catania
Equipo de proyecto: Tomás Kranevitter, Sofia Stecklein, Candela Catini
Ubicación: Barrio cerrado Ilha da Laranjeiras- Av. Red Park 784 – Florianópolis – Brasil
Superficie: 270 m2
Año: 2023
























